- Aufstellung in Gebäuden
- unter Dach
- vor Niederschlägen geschützt
Feuerbeständiger Container für IBC
zzgl. MwSt.
Lieferung FREI HAUS inklusive!
Lieferzeit 30 Werktage
¹ Pflichtfeld
- Artikel-Nr.: 22603638
- Hersteller-Nr.: PCO-2-IBC
ADESATOS Shop Vorteile
- Versandkostenfrei*
- 24h Versand*
- Fachberatung vor Ort
*ab 250 EUR Netto Warenwert. Gilt für Lagerartikel
Priorit Priocont PCO-2-IBC, feuerbeständiger Container, F90, für 2 IBC / 6 Fässer
Feuerbeständiger Container zur Lagerung von 2-IBC-Gebinden oder 6-200l-Fässern auf Europaletten.
Die Vorteile: chemisch hochbeständige Oberflächen innen und außen, mit Gabelstapler unterfahrbar und dadurch ortsbeweglich, günstiger Preis im Verbund mit zertifizierter Güte. Der Container ist rauchdicht nach DIN 18095 und bietet 90 Minuten Feuerwiderstand (F90).
Funktion
- Erfüllt die Anforderungen gemäß TRGS 510, WHG, GefStoffV
- Feuerwiderstand 90 Minuten: feuerbeständig
- EI 90/F 90 Klassifizierung
- Gutachten einer akkreditierten Materialprüfanstalt
Aufbau
- Container mit hoher mechanischer und chemischer Beständigkeit
- Einlagiger Wandaufbau aus homogenem Vollmaterial
- Verzinkte Bodenauffangwanne für Umweltschutz gemäß Wasserhaushaltsgesetz § 19
- Abmessungen optimiert für IBC/KTC-Gebinde und Europlatten
- Türen mit 3D-Edelstahlbändern, 3-Punktverriegelung und Profilhalbzylinder
- Elektrische Türfeststellanlage mit flexibel einstellbarem Türöffnungswinkel bis ca. 120°
- Rauchdetektierte Branderkennung für automatischen Türverschluss
- Schließfolgeregelung
- Explosionsgeschützte Raumelektrik
- Zwei feuerbeständige Lüftungsschotts K90 DN 100 mm
- Stellflächen mit feuerverzinkten Gitterrosten
Materialgüte
- Standardoberfläche CPL ist chemisch hochbeständig und feuchtigkeitsunempfindlich
- Baustoff mit Oberflächenbeschichtung, klassifiziert A2 – s1, d0: nichtbrennbar
- Standardfarbe lichtgrau, ähnlich RAL 7035
Lieferumfang
- Auffangwanne
- Tandemtürschließer
- Beipack: Belüftung
- Schließfolgeregelung inkl. Türdämpfer
Optionen und Zubehör
- Türen oder ganzer Korpus in alternativen RAL-Farben, auf Anfrage
- Ausführung mit Einbruchschutz entsprechend WK 2
- Kabel- und Rohrschott d = 135 mm, KRS125
- Einzelkabel- und Rohrdurchführung EN-Schränke Typ90, EKRD90-014-014
- Halbzylinder verschiedenschließend ohne Rosette, EP.B.8716
- Halbzylinder KABA gleichschließend ohne Rosette, EP.B.8718
- Vierkantstift geteilt, 9 mm, L = 130 mm bei Panikschloss, EP.B.8965
- Drückerganitur Edelstahl, EP.B.7976
- Technische Abluft
- Montage vor Ort auf Anfrage
Technische Abluft (nicht im Lieferumfang enthalten)
- unterschiedliche Ventilatoren für die Technische Abluft gemäß TRGS 510 lieferbar
- Varianten für den 0,4-fachen (passiv) oder 5-fachen Luftwechsel (aktiv)
- Einrichtung zur Überwachung des Volumenstroms bei aktiver Lagerung
- Signalmelder optisch / akustisch bei Unterschreiten des Luftwechsel
Fachberatung bei Ihnen vor Ort
|
|
|
| Produkttyp Gefahrstofflagerung: | Gefahrstoff-Container |
| Auffangvolumen (L): | 1000 |
| Feuerwiderstandsfähigkeit: | Typ 90 |
| Lagerkapazität: | 2 x 1000-L-IBC, 6 x 200-L-Fass |
| Normen/Richtlinien: | EN 18095 |
Technische Daten
| Artikelnummer | PCO-2-IBC |
| Einrichtung | Auffangwanne |
| Außenmaße H x B x T (mm) | 2697 x 3104 x 1634 |
| Innenmaße H x B x T (mm) | 1976 x 3020 x 1570 |
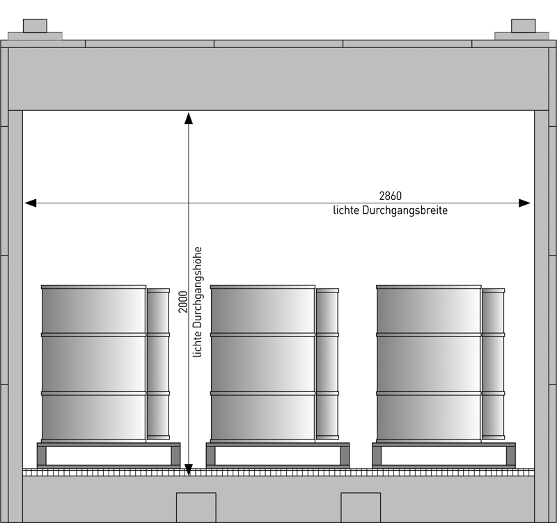
| lichte Durchgangsbreite (mm) | 2860 |
| lichte Durchgangshöhe (mm) | 2000 |
| Fachhöhe (mm) | 2000 |
| Fachtiefe (mm) | 1370 |
| Lagervolumen (IBC) | 2 |
| Lagervolumen (200l Fass) | 6 |
| Kapazität EUR-Paletten | 3 |
| Auffangvolumen (L) | 1000 |
| Gewicht inkl. Einrichtung (kg) | 2850 |
| Fachbreite (mm) | 2860 |
| Anzahl Türen | 2 |
| Türanschlag | beidseitig |
| Türbreite (mm) | 2860 |
| Türhöhe (mm) | 2000 |
| Feuerwiderstandsklasse | F90 (Minuten) |
| Tragkraft m² (kg) | 1200 |
| Unterbau | Sockel mit Einfahrtaschen |
| Einfahrtaschen Außenabstand (mm) | 955 |
| Einfahrtaschen Innenabstand (mm) | 694 |
| Einfahrtaschen Innenbreite (mm) | 250 |
| Einfahrtaschen Innenhöhe (mm) | 175 |
| Farbe | Lichtgrau, ähnlich RAL 7035 |

PRIORIT entwickelt und produziert Brandschutzprodukte ausschließlich in Deutschland.
Alle Produkte erfüllen die gesetzlichen Brandschutzziele. Die Produktion wird bauaufsichtlich überwacht, das garantiert die gleichbleibend hohe Qualität der PRIORIT Produkte und die Zufriedenheit der Kunden.
Auf der Basis nichtbrennbar klassifizierter Bauprodukte fertigt die PRIORIT AG feuerwiderstandsfähige Bauteile mit dekorativen Oberflächen und bietet damit vielfältige Möglichkeiten Sicherheits- und Gestaltungsaspekte in Einklang zu bringen.
PRIORIT – Brandschutzlösungen für ...
... Baulicher Brandschutz im Hochbau
Durch baulichen Brandschutz sollen Brände bzw. deren Ausbreitung verhindert werden. Vorrangiges Ziel ist hierbei der Personenschutz. Damit steht die Sicherung der Flucht- und Rettungswegen im Mittelpunkt aller baulichen Maßnahmen. Diese müssen der Ausbreitung von Feuer und Rauch verbeugen und wichtige Leistungsanlagen funktionsfähig erhalten. Hierfür entwickelt und fertigt PRIORIT feuerwiderstandsfähige und bauordnungsrechtlich zugelassene Bauteile.
... Baulicher Brandschutz im Tunnelbau
An Tunnel für den Straßenverkehr werden erhöhte Anforderungen gestellt. Denn im Brandfall wirkt die Sauerstoffzufuhr in der Tunnelröhre wie in einem Kamin: es entstehen extrem schnell sehr hohe Temperaturen. In einem mehrjährigen, durch Bundesmittel geförderten Forschungsprojekt wurden von PRIORIT Wände, Decken, Türen, Kabel- und Rohrschotts nach Vorgabe von RABT und ZTV-ING entwickelt und untersucht.
... Gefahrstofflagerung
Bei der Lagerung von brennbaren Flüssigkeiten gibt es drei grundlegende Anforderungen: erstens die Minimierung des Brandrisikos sowie der Schutz des Inhalts von Schränken im Brandfall, zweitens die Minimierung der abgegebenen Dämpfe und drittens die Rückhaltung möglicher Leckagen innerhalb der Schränke. Hierfür entwickelt und fertigt PRIORIT die entsprechenden Sicherheitsschränke.
... Physikalischer IT- und Datenschutz
IT-Anlagen für Datenverarbeitung, Internet und Kommunikation sind mittlerweile essentieller Bestandteil für die Geschäfts- und Produktionsprozesse in Unternehmen. Sie bedürfen daher besonderem Schutz: auch und vor allem im Brandfall.
PRIORIT-Lösungen sorgen im Brandfall für den Funktionserhalt von IT-Anlagen und somit das sichere Funktionieren von IT-basierten Geschäftsprozessen.

Gerne beraten wir Sie bei der Auswahl der für Ihre spezielle Anwendung passenden Priorit-Produkten, unsere Mitarbeiter freuen sich auf Ihre Kontaktaufnahme:
Hotline: 0800 8050900 Zentrale: +49 (0)6042 97 81 68-0 E-Mail: info@adesatos.com
Lacont Wasserschutz-Fachcontainer WSC-F-E-2-35
Lacont Wasserschutz-Fachcontainer WSC-F-E.2-70
Lacont Wasserschutz-Fachcontainer WSC-F-E.2-30
BDLC-501 gegen extremen Geruch, Flüssigkeit,...

